Tóparthoz közeli lakóház Délegyházán – 80 méterre a víztől!
Délegyháza egyik kedvelt, csendes utcájában – a Fagyöngy utcában – eladásra kínálok egy 336 m²- s telken álló, 50 m²- s, másfél szobás családi házat, mindössze 80 méterre a horgásztótól.
Az ingatlan belterületi, kivett lakóház és udvar besorolású, per- és tehermentes, egyetlen tulajdonostól.
A ház a ’70-es évek végén téglából épült, jelenleg felújítandó állapotban van, így új tulajdonosa saját igényei szerint formálhatja.
Közművek: víz, villany, gáz, csatorna rendelkezésre állnak.
Az udvarban 3 autó számára is kényelmes parkolási lehetőség adott.
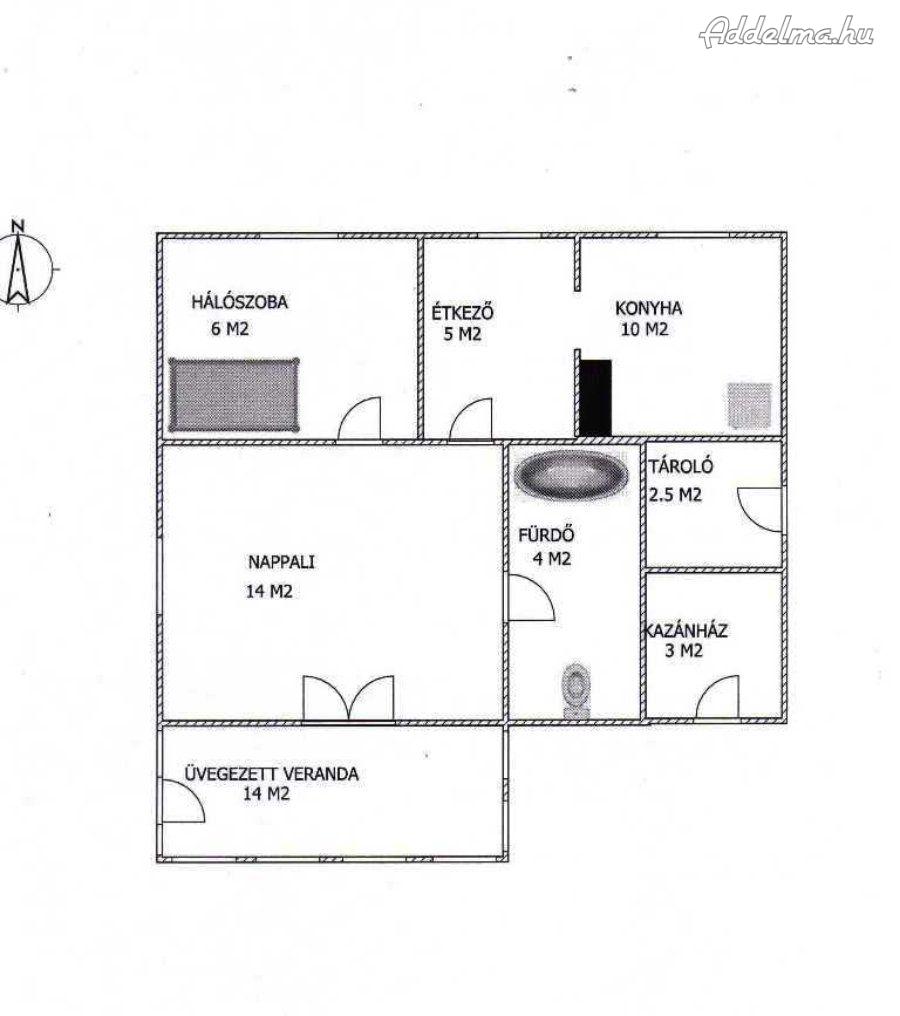
A belső tér elrendezése:
• üvegezett veranda,
• nappali (14 m²),
• hálószoba (6 m²),
• kádas fürdőszoba (4 m²),
• étkező (5 m²),
• konyha (10 m²),
• kazánház (3 m²) és tároló (2,5 m²).
A természet szerelmeseinek ideális választás — a háztól pár lépésre nagy kiterjedésű horgásztó, a közelben pedig a Kiskunsági Nemzeti Park, az Ócsai Tájvédelmi Körzet és a Ráckevei-Duna található.
Tökéletes otthon vagy nyaraló azoknak, akik a nyugalmat, a vízpart közelségét és a természetet keresik.
A környék igazi természeti kincs: tizenkét kavicsbánya-tó, a Kiskunsági Nemzeti Park és a Ráckevei-Duna közelsége varázslatos hangulatot teremt.
Ha egy helyet keresel, ahol lelassulhat az idő, ez az ingatlan tökéletes kiindulópont lehet álmaid otthonához.
Ár: 35. 000. 000 Ft
Érdeklődni: +36 70 558 1160
További szolgáltatások:
– Ingatlaneladásban segítség
– Energetikai tanúsítvány 72 órán belül
– Ingyenes hitelügyintézés
– Jogi háttér és földhivatali ügyintézés
– Országos adatbázisból e-mailes ajánlatküldés